

Keilani Rolls, District Director at Fathom Realty – Oklahoma, has taken on one of downtown Tulsa’s most exciting real estate listings—the historic Parker Building, located at the corner of 3rd and Main Streets. Built in 1929, the 10-story, 56,589-square-foot building is ready for a major transformation. Rolls is at the forefront, now under contract with a developer for millions of dollars in potential residential and mixed-use development.
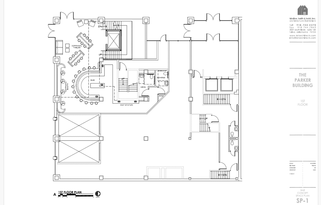
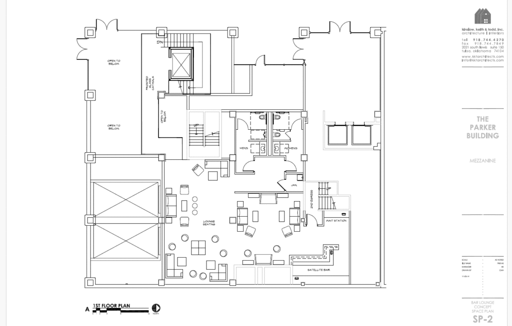
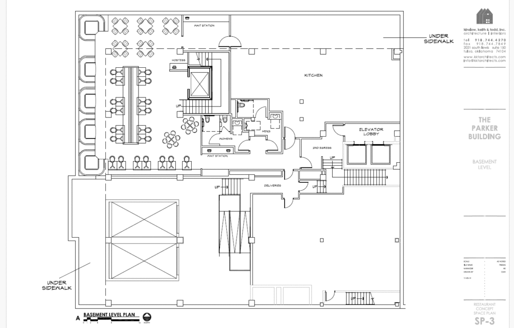
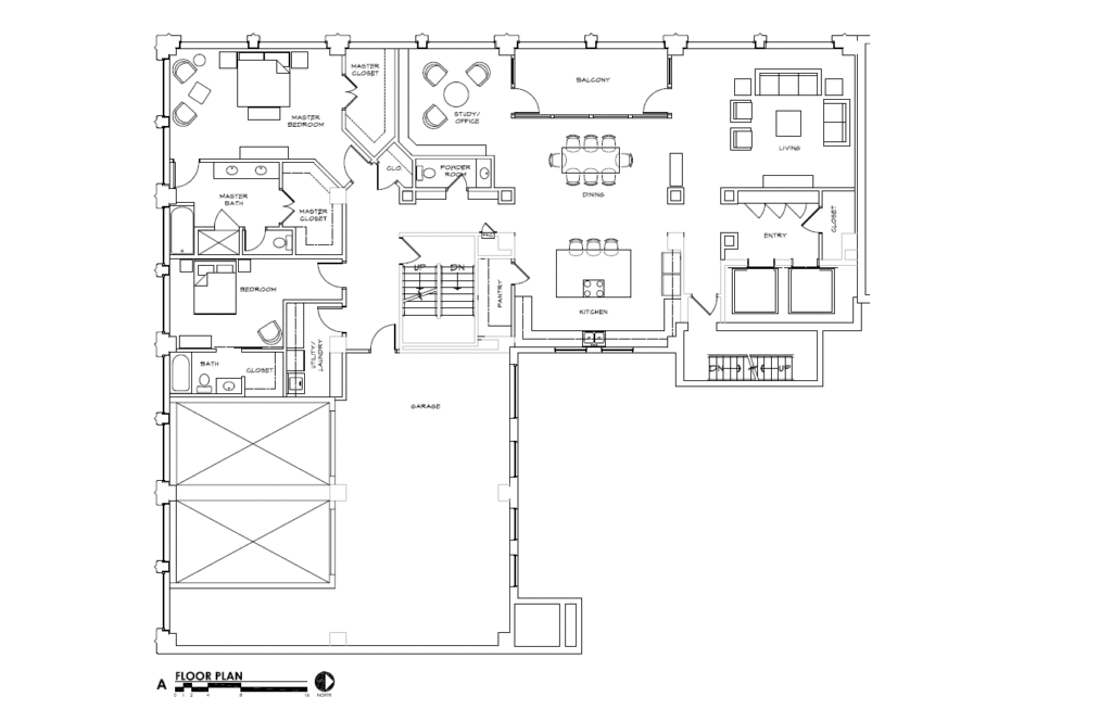
The Parker Building, originally home to Parker Drilling Company, is one of Tulsa’s landmark structures. Although plans for its redevelopment are still in the early stages, the property attracted significant interest from developers with creative visions. One of the more unique proposals includes the possibility of installing an elevator designed for vehicles, allowing cars to be moved to different floors or even into the basement.
Rolls explained to the Tulsa World newspaper, “A vehicle elevator is estimated to cost at least $1 million, but it’s one of the exciting features discussed.” The idea of incorporating innovative concepts like this speaks to the building’s potential to become a symbol of Tulsa’s urban revival. Rolls worked with Hickory Investments LLC to manage “letters of interest” from several developers, each looking to make their mark on this iconic downtown space.


The Parker Building is being marketed with the flexibility that multiple developers could become involved, each focusing on different property sections. This approach allows for a diverse blend of residential, retail, and commercial spaces under one roof. “Even though it’s not the largest listing I’ve ever done, it’s the most exciting,” Rolls remarked, sharing her enthusiasm for this project after 28 years of experience in real estate.
What sets this listing apart for Rolls is her investment in its future. “This building is probably one I want to follow after its sale,” she said. “It’s just been such a great listing, and I think it will be one of the first ones I want to see through to its development.”
Rolls’ dedication to the project and the potential for the Parker Building to transform into a vibrant hub of downtown activity showcases her expertise and passion for Tulsa’s real estate market. With her leadership, this historic building could become a key part of the city’s ongoing revitalization, bringing new energy and investment into the heart of downtown.




Since the Tulsa World report, Rolls notes, “We also put in an offer to purchase the building next door that will be part of this development. I also got the listing from the developers to market the development. We have estimated that the end value of the project will be $25 – $30 million.”
As the Parker Building awaits its next chapter, one thing is certain: with Keilani Rolls at the helm, its transformation is in the best possible hands. Whether it’s a residential conversion, commercial development, or a mix of both, this property is set to play a major role in Tulsa’s future, and Rolls is eager to be a part of its journey.
More in Agent Life
Agent Spotlight: Scott Lustig, Leading with Strategy, Service, and “Partner-Clients”
How Lindsey Schmidt Built a Thriving Military Real Estate Niche at Fathom Realty
From Dance Studio to Dream Homes: Karina Bassett’s Path to Real Estate Success
Latest on the Blog

Agent Spotlight: Scott Lustig, Leading with Strategy, Service, and “Partner-Clients”

Consistent Prospecting Strategies for Real Estate Agents


